


產品概述
HXNG15-12型系列高壓環網柜適用于三相交流10KV、50Hz的配電系統中,廣泛應用于城網農網建設和改造工程、工礦企業、高層建筑和公共設施等,作用環網供電單元和終端設備,主要用于電能分配、控制和電氣設備的保護作用。尤其適合裝入預裝式變電站作為電力系統的控制和保護。

HXGN15-12環網柜概述
HXGN15-12系列固定式金屬封閉開關柜(簡稱環網柜)適用于交流50HZ,10KV的電網中作為開斷負荷和短路及關合短路電流用。本環網柜配用彈簧操作機構,即可電動,也可手動操作負荷 開關,接地開關和隔離開關配用手動操作機構。廣泛應用與城市商業中心、工業集中區、機場、電器化鐵路、高速公路等供電可靠性高的配電系統中,既可在戶內外單獨使用,也可繼承在預 裝式變電站之中。
型號及其含義

主要特點
1、開關柜具有可靠的"五防"功能,柜上安裝有帶電顯示裝置。
2、外殼防護等級不低于IP2X。 3、每臺柜面有接線方案模擬圖,可清楚地反映開關柜一次元器件配置。
4、采用優質鍍鋅鋼板拼裝而成,并分成母線室、開關室、電纜室和儀表室,各室相對獨立,均有泄壓通道。
5、提供二套安裝及調試工具。
6、HXGN15-12系列環網柜內的所有元器件均符合有關標準的要求。
7、提供產品的有效型式試驗報告及產品鑒定證書。
8、出廠時提供開關柜內所有電氣元器件的合格證及試驗報告。
主要技術參數
| 名稱 | 單位 | 參數 | ||
| 額定電壓 | KV | 10/12 | ||
| 額定電流 | A | 630 | ||
| 主母線電流 | 進線柜 | A | 630 | |
| 出線柜(組合電器) | 125 | |||
| 額定短時耐受電流 | KA | 20 | ||
| 額定短路持續時間 | S | 4 | ||
| 額定峰值耐受電流 | KA | 50 | ||
| 額定短路關合電流 | KA | 50 | ||
| 額定有功負載開斷電流 | A | 630 | ||
| 閉環開斷電流 | A | 630 | ||
| 額定電纜充電開斷電流 | KA | 20 | ||
| 接地開關額定短時耐受電流 | KA | 20 | ||
| 接地開關額定短路持續時間 | S | 4(2) | ||
| 接地開關額定峰值耐受電流 | KA | 50 | ||
| 接地開關額定短路關合電流 | KA | 50 | ||
| 1min額定工頻耐受電壓 | 相間、相對地、真空負荷開關斷口 | KV | 42 | |
| 隔離開關斷口 | 48 | |||
| 額定雷電充電耐受電壓 | 相間、相對地、真空負荷開關斷口 | kV | 75 | |
| 隔離開關斷口 | 85 | |||
| 機械壽命 | 真空負荷開關 | 次 | 10000 | |
| 接地開關(刀)、隔離開關(刀) | 2000 | |||
| 交接電流 | A | 3150 | ||
結構和工作原理
主要配裝ZFN-10型真空負荷開關,主要方案有進線柜和出線柜等。
1、進線柜方案:柜內主回路有一臺ZFN-10型真空負荷開關,它配裝有隔離刀,酌情還配裝接地刀所組成,三者共裝在一個機架上,并互有聯鎖。因此可實現接通母線、隔離、接地三個工位的 操作,柜內還可靈活裝配CT、PT等元件。
2、出線柜方案:柜內主回路有一臺ZFN-10型真空負荷開關和帶撞擊器的熔斷器(有隔離開關的作用)及接地刀所組成,也可實現三工位操作,柜內還可靈活裝配CT、PT和ZNO避雷器等元件。 因此有時可以省去計量柜。
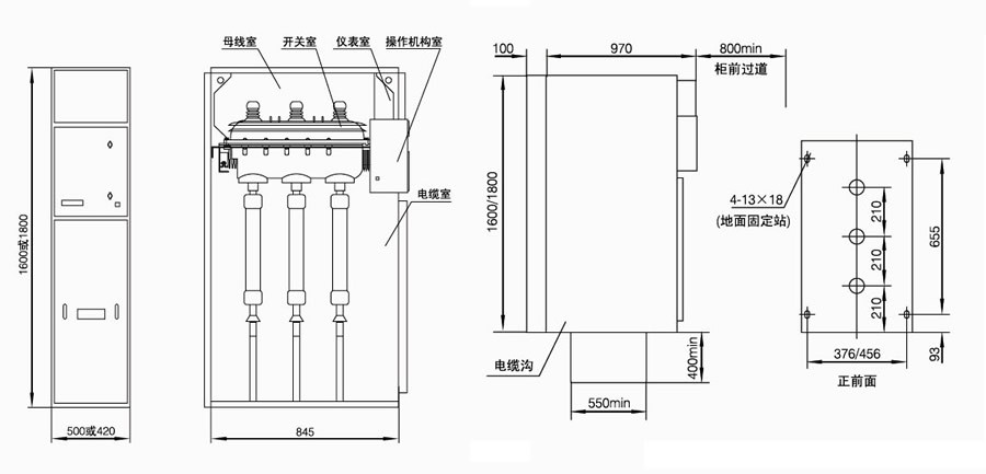
HXGN15-12環網柜外形及安裝尺寸

訂貨時須提供下列資料
1、主回路系統方案圖。
2、輔助電路電氣原理圖,輔助電路電壓。
3、柜內元件清單(包括元器件型號、名稱、規格、數量)。
4、開關設備平面布置圖。
5、柜體顏色(如無要求按本公司標準供給)。
6、所需備品備件清單。
7、其它特殊使用條件。